Внешний периметр отделан гладким стальным листом 2мм. Толщина минерального утеплителя в стенках 100, в дверце - 150мм.
2 слоя ленточного резинового уплотнителя для герметичного примыкания:
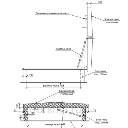
- на отбойной полосе коробки по трем сторонам,
- на опорной поверхности борта сплошной.
Элементы фурнитуры
- ригельный замок с декоративным кожухом с личинкой под шестигранный ключ,
- внутренняя ручка для толкания и притягивания дверцы со стороны лестницы эвакуационного подъема на крышу.
Для покупки товара в нашем интернет-магазине выберите понравившийся товар и добавьте его в корзину. Далее перейдите в Корзину и нажмите на «Оформить заказ» или «Быстрый заказ».
Когда оформляете быстрый заказ, напишите ФИО, телефон и e-mail. Вам перезвонит менеджер и уточнит условия заказа. По результатам разговора вам придет счет на оплату на почту. После оплаты заказа останется только ждать доставки в Москву и радоваться новой покупке.
Оформление заказа в стандартном режиме выглядит следующим образом. Заполняете полностью форму по последовательным этапам: адрес, способ доставки, оплаты, данные о себе. Нажмите кнопку «Оформить заказ». На указанную почту придет счет на оплату Товара. После получения оплаты заказ передается с службу доставки или в производство при отсутствии изделия нужного размера на складе. Доставка осуществляется за счет грузополучателя.
Отдел логистики оформляет заявку на сдачу груза, и заказ доставляют до терминала в Москве или в соседний город, при отсутствии пункта выдачи заказов в Вашем городе. После межтерминальной перевозки Вам позвонит оператор перевозчика, пригласит оплатить услугу перевозки и забрать груз или оформит услугу экспедирования до двери с оплатой стоимости доставки водителю при получении.
не включают доставку.
Запросите стоимость перевозки выбранных изделий у наших менеджеров по телефону или через мессенджеры.
Заказы отгружаются с разных площадок транспортной компанией в Москву. Оплата транспортировки производится напрямую перевозчику при получении груза удобным для Вас способом.
Нижегородская производственная база
Борские люки, уличные крышки Проспект и продукцию марки Шаркон отправляем с терминала в Нижнем Новгороде.Площадка в Подольске
Изделия семейства АМО (на амортизаторах, с электроприводом), шарнирные конструкции Булат отгружаем:- с терминала в г. Подольск ТК "Деловые линии", "КИТ",
- самовывозом со склада готовой продукции изготовителя,
- самовывозом с терминала ТК "Деловые линии" в г. Москва ул. Подольских курсантов,
- бесплатная доставка заводским транспортом до условного места на МКАД в границах от Можайского до Каширского шоссе,
- платная доставка заводским транспортом до адреса за пределами третьего транспортного кольца,
- платная доставка до адреса Покупателя ТК "Деловые линии", "КИТ".
